5 locali in vendita

Volpiano, Via Vivaldi
€ 239.000
5 locali 5 locali
140 Mq 140 Mq
2 bagni 2 bagni

5 locali in vendita

Volpiano, Via Vivaldi

Descrizione annuncio

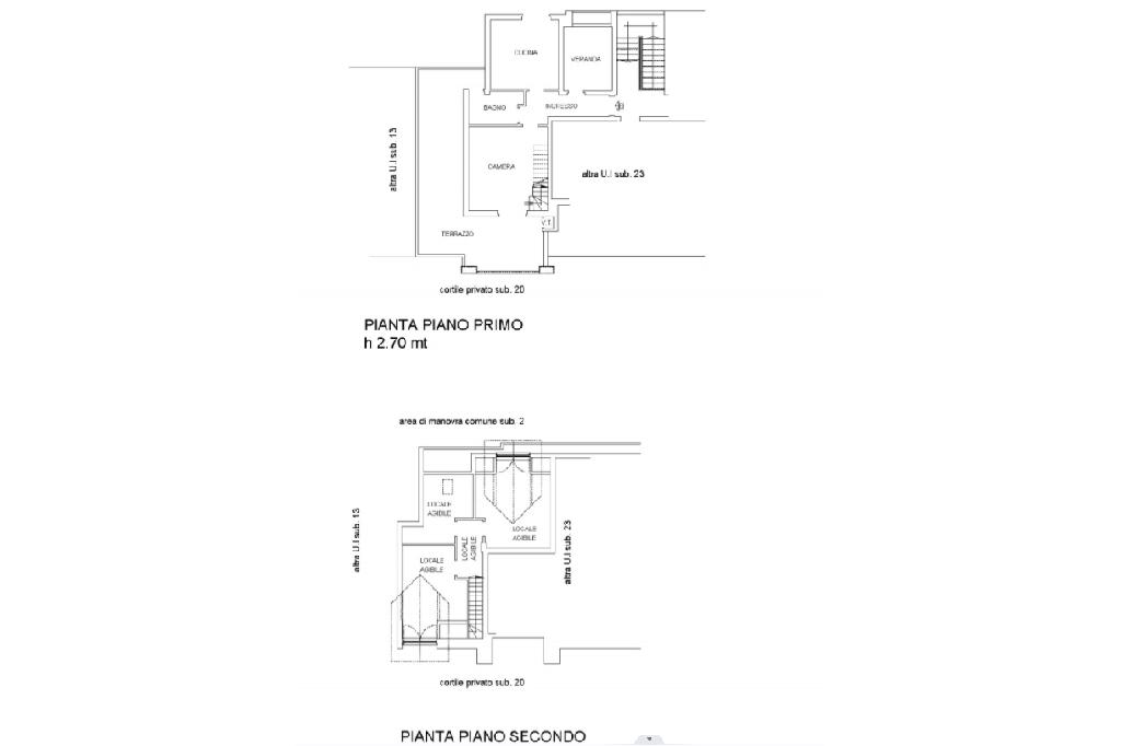
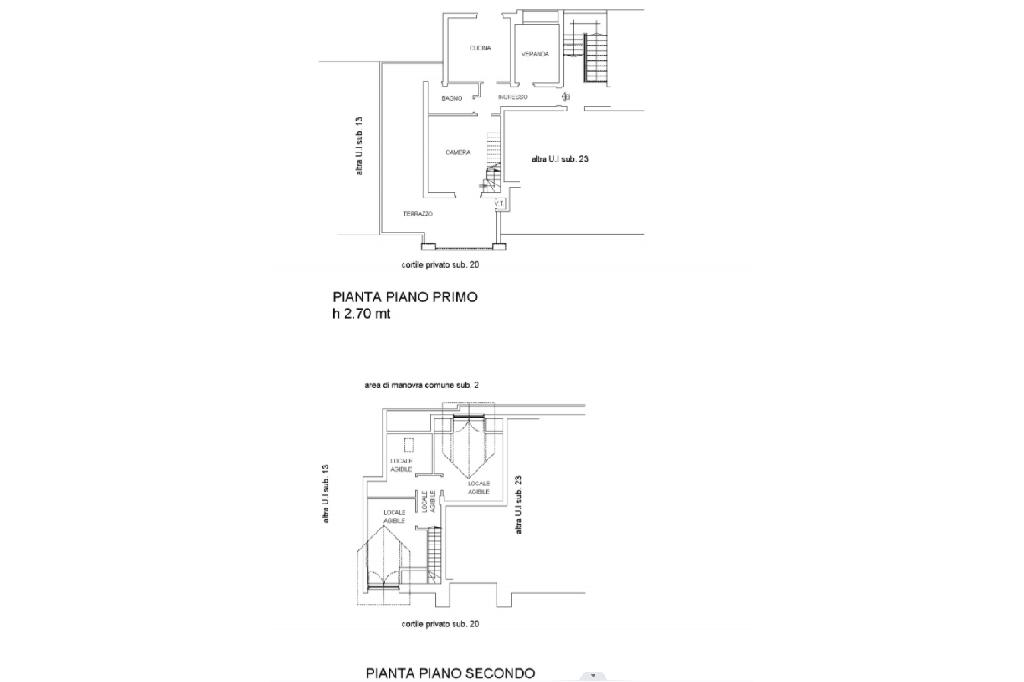
Proponiamo in vendita ampio cinque locali, situato all'interno di una palazzina signorile edificata nel 2011.

La soluzione rifinita con materiali extracapitolato, è predisposta su due livelli:

Al piano principale troviamo luminosa cucina abitabile, bagno finestrato con box doccia, cameretta e soggiorno con accesso diretto al terrazzo di 40 mq, dotato di punto acqua e barbecue.

Dal soggiorno tramite comoda scala interna si ha accesso al piano superiore, in cui vi sono due ampie camere da letto, entrambe illuminate da infissi in vetrocamera in legno; e il bagno padronale, anch'esso finestrato e caratterizzato da vasca idromassaggio.

La soluzione si presenta dotata di due climatizzatori Daikin, infissi in legno in vetrocamera, zanzariere e tende da sole nuove.

A completare la propietà box auto doppio di 35 mq.

Mostra tutto

Nelle vicinanze

Trasporto pubblico Trasporto pubblico
Volpiano
Volpiano
690 m
S. Benigno Canavese
S. Benigno Canavese
2,7 Km
Volpiano (Piscina-v. Trento)
Volpiano (Piscina-v. Trento)
510 m
Volpiano (v. Brandizzo/v. Genova)
Volpiano (v. Brandizzo/v. Genova)
580 m
Scuole Scuole
Scuola Primaria "Guglielmo da Volpiano"
560 m
Scuola secondaria di primo grado "Dante Alighieri"
990 m
Scuola Primaria "Gigi Ghirotti"
1,3 Km
Scuola dell'Infanzia "Acquerello"
1,3 Km
scuola materna Teresa Belloch
3,0 Km
Farmacia Farmacia
Farmacia
470 m
Farmacia Comunale 21
1,2 Km
Supermercati Supermercati
Lidl
1,3 Km
Ristoranti Ristoranti
Ristorante Lago Azzurro
2,4 Km
Mostra tutto

Caratteristiche

Rif.:
61118363
Piano:
1 di 1 (Piano medio)
Box:
1
Terrazzi:
1
Camere da letto:
3
Arredamento:
Assente
Mostra tutto
Prezzo Prezzo
€ 239.000
Rata mutuo Rata mutuo
€ 1.128 / mese
Spese annue Spese annue
€ 700
Proponi il tuo prezzoProponi il tuo prezzo

Classe Energetica

C
C
C
C
C
C
C
C
C
Anno di costruzione:
2011
Riscaldamento:
Autonomo
Tipo impianto:
A radiatori
Tipo alimentazione:
Metano

Ti interessa visionare l'immobile?

Fissa un appuntamento  Fissa un appuntamento

Richiedi informazioni

Clicca su Leggi per aprire l'informativa
* Questi campi sono obbligatori

Calcola il tuo mutuo

Semplice e senza impegno
Anticipo

( % )
Mutuo

( % )

pochi semplici passi

inserisci i tuoi dati
Questionario completato
Grazie per aver richiesto un appuntamento senza impegno con un nostro Consulente del Credito e Assicurativo.

Hai inserito correttamente tutti i dati necessari e a breve riceverai una e-mail con un link da convalidare per inviare i tuoi dati.
Affiliato
La Novembre Srl
Via Umberto I , 17 10088 Volpiano (TO)
Via Umberto I , 17 10088 Volpiano (TO)
Zona: Volpiano
Mostra su mappa
Orari: Lun/Ven dalle 8.30 alle 12.30 e dalle 14.30 alle 20.00. Sabato chiusura ore 19.00
Affiliato
La Novembre Srl
Via Umberto I , 17 10088 Volpiano (TO)

2025 Tecnocasa Franchising S.p.A. - P. IVA 08365160152 - Via Monte Bianco 60/A 20089 Rozzano (MI). Ogni agenzia ha un proprio titolare ed è autonoma. Privacy policy | Policy utilizzo | Cookie policy